
NoktaBodrum
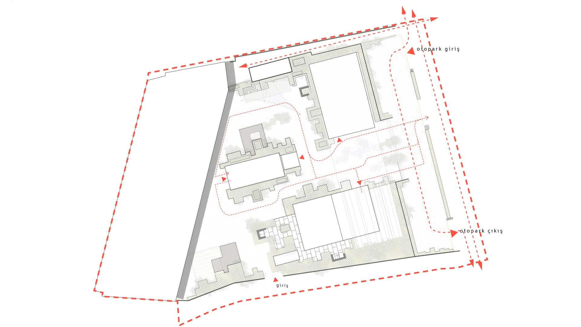
2019 yılında yapılan ve mevcutta açık alan alışveriş merkezi olarak kullanılan proje alanı, işveren talebi ile yeşil alan oranı arttırılan ve yeni fonksiyonlar içeren bir kullanıcı merkezine dönüşecektir.
2019 yılında yapılan ve mevcutta açık alan alışveriş merkezi olarak kullanılan proje alanı, işveren talebi ile yeşil alan oranı arttırılan ve yeni fonksiyonlar içeren bir kullanıcı merkezine dönüşecektir.



Kategori
Karma Kullanım
Lokasyon
Muğla, Türkiye
Alan
4200 m²
Müşteri
Punto
Kategori
Karma Kullanım
Lokasyon
Muğla, Türkiye
Alan
4200 m²
Müşteri
Punto
Kategori
Karma Kullanım
Lokasyon
Muğla, Türkiye
Alan
4200 m²
Müşteri
Punto


Alanın bodrum kat mimari betonarmesine yerleşmesi, statiğin müsait olması fakat düşük döşemenin olmaması sebebi ile sezonluk geliştirilen ve 30-60-120 cm arasında değişkenlik gösteren metal çerçeveler ve içlerine yerleşen saksı sistemleri ile yeşil alan artışı hedeflenmiştir ve yeşil alan içerisine yerleşen böcek otelleri ve kuş yuvaları ile tüm kullanıcıların alanı ziyaret etmesi istenmiştir.
Alanın bodrum kat mimari betonarmesine yerleşmesi, statiğin müsait olması fakat düşük döşemenin olmaması sebebi ile sezonluk geliştirilen ve 30-60-120 cm arasında değişkenlik gösteren metal çerçeveler ve içlerine yerleşen saksı sistemleri ile yeşil alan artışı hedeflenmiştir ve yeşil alan içerisine yerleşen böcek otelleri ve kuş yuvaları ile tüm kullanıcıların alanı ziyaret etmesi istenmiştir.






Etkinliklerin Kesişim Noktası
Etkinliklerin Kesişim Noktası
Etkinliklerin Kesişim Noktası




Explore other projects
We are landscape and urbanism studio.



We are landscape and
urbanism studio.



We are landscape and urbanism studio.





